Search

Leave a Message

Thank you for your message. We will be in touch with you shortly.

Explore Our Properties

Property Description

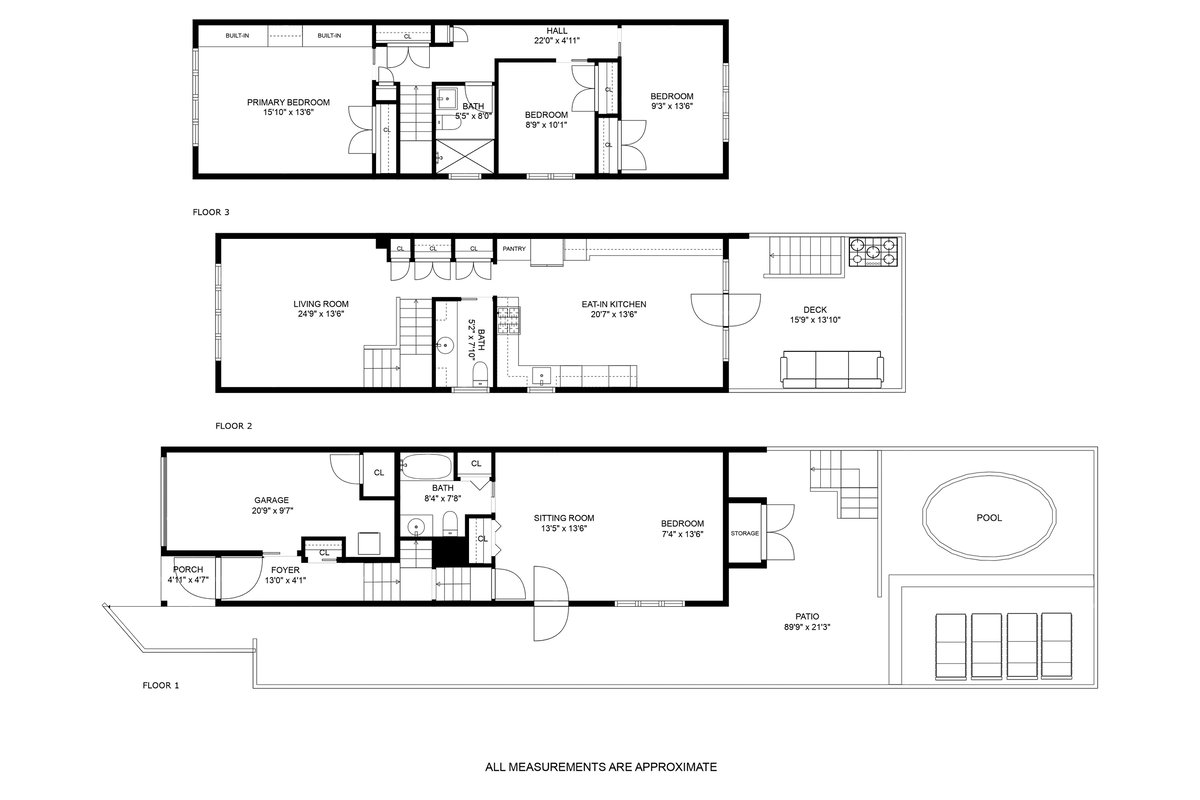
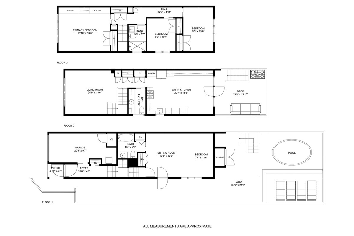
Welcome to 31 Blaine Court on a prime Tree-Lined West Brighton street where spaciousness meets modern elegance in this beautifully renovated 1,760SF single-family; semi-detached townhouse. With four bedrooms, two and a half bathrooms, a built-in one-car garage and all the additions one can imagine, this residence offers the perfect blend of comfort and style!

Step inside to discover a meticulously renovated interior, starting with the spacious sunlit living room, walk through the living area to a fully renovated powder room and a fully custom eat-in chefs kitchen. Adorned with custom cabinetry brand-new appliances, including a dishwasher, garbage disposal, oversized fridge, six burner gas stove w/ fanhood and wine fridge. This kitchen is a haven for culinary creativity. Whether you're cooking for a crowd or enjoying a cozy meal with loved ones, this space is sure to impress.

Unwind in the luxurious primary bedroom suite, complete with wall to wall built-in closets for added convenience; an additional double closet for those extras; and a beautifully large room to fit all those favorite pieces of furniture. The recently fully renovated windowed bathroom is a retreat in itself, boasting floor-to-ceiling tiles and a spa shower with JACLO* fixtures offering a rejuvenating experience after a long day.

Throughout the home, inside and out, recessed lighting adds a touch of modernity and warmth, illuminating each room with a soft, inviting glow. Step outside to your own private oasis in the beautifully landscaped rear yard. A rear deck with sitting area and a natural gas fired barbeque grill provides the perfect spot for outdoor entertaining or simply soaking up the sun, while a sparkling heated deck pool offers a refreshing escape on warm summer days.

West Brighton is a vibrant and diverse neighborhood with a rich history and strong sense of community offering residents a blend of urban amenities and suburban charm. One of the defining features of West Brighton is its tree-lined streets and cozy residential blocks. You'll find a mix of housing options here, from historic Victorian homes to modern condominiums, providing housing opportunities for families, young professionals, and retirees alike. Many homes boast well-maintained front yards and gardens, adding to the neighborhood's appeal.

Residents enjoy easy access to a variety of parks and recreational facilities. Clove Lakes Park, with its scenic trails, ponds, and sports fields, is a popular spot for outdoor activities such as jogging, picnicking, and fishing. The nearby Snug Harbor Cultural Center and Botanical Garden offers a peaceful escape. Minutes from the YMCA and the Staten Island Zoo, makes this the most perfectly situated block. From cozy cafes to family-owned pizzerias and ethnic eateries, there's no shortage of dining options to explore. Whether you're craving Italian, Mexican, or classic American cuisine, you're sure to find something on Forest Avenue to satisfy your taste buds.

Overview

Property Status
Sold
MLS ID
RLS10962332
Property Type
Residential
Year Built
1986

Features & Amenities

Total Area
1,760 Sq.Ft.
Stories
3
Pool
In Ground
Heat Type
Baseboard
Air Conditioning
Central Air
Laundry Room
See Remarks
Appliances
Cooktop, Dryer, Dishwasher, ENERGY STAR Qualified Appliances, Gas Cooktop, Gas Oven, Range, Refrigerator, Range Hood, Stainless Steel Appliance(s), Trash Compactor, Wine Cooler, Washer
Other Interior Features
Built-in Features, Crown Molding, Eat-in Kitchen, Granite Counters, His and Hers Closets, Recessed Lighting
Security Features
Security System
Other Exterior Features
Barbecue, Private Entrance, Private Yard
Sales Price
$748,000
Real Estate Tax
$6,156/yr

Downloads

31 Blaine Court

Schedule a Tour

We would love to help you see this beautiful home! As a full-service brokerage, we can help you tour. Please submit an offer, and answer questions about the buying process.

Thank you

for your interest in 31 Blaine Court, New York City, NY 10310

31 Blaine Court
Navigate

I'm Interested In

31 Blaine Court

or Contact

Browse Our

Featured Properties

Explore our active properties below or contact us to schedule a private showing.

  • 52 Nicolosi Loop For Sale

    $3,250,000

    52 Nicolosi Loop, New York City, NY 10312

    • 3 Beds
    • 5 Baths
    • 5,226 Sq.Ft.
  • 35 Clarkson Avenue A4 For Sale

    $765,000

    35 Clarkson Avenue A4, Brooklyn, NY 11226

    • 2 Beds
    • 2 Baths
    • 767 Sq.Ft.
  • 106 Battery Avenue 301 For Sale

    $579,000

    106 Battery Avenue 301, Brooklyn, NY 11209

    • 1 Bed
    • 2 Baths
    • 696 Sq.Ft.
  • 9511 Shore Road 101 For Sale

    $850,000

    9511 Shore Road 101, Brooklyn, NY 11209

    • 2 Beds
    • 1 Bath
    • 1,120 Sq.Ft.
  • 1226 St Marks Avenue 3B For Sale

    $460,000

    1226 St Marks Avenue 3B, Brooklyn, NY 11213

    • 1 Bed
    • 1 Bath
    • 601 Sq.Ft.
  • 1226 St Marks Avenue 4A For Sale

    $625,000

    1226 St Marks Avenue 4A, Brooklyn, NY 11213

    • 1 Bed
    • 1 Bath
    • 742 Sq.Ft.
  • 265 Wythe Avenue 4 For Sale

    $3,295,000

    265 Wythe Avenue 4, Brooklyn, NY 11249

    • 3 Beds
    • 3 Baths
    • 1,808 Sq.Ft.
  • 351 St Pauls Avenue For Sale

    $1,099,000

    351 St Pauls Avenue, New York City, NY 10304

    • 6 Beds
    • 3 Baths
    • 3,072 Sq.Ft.
  • 1384 E 29th Street For Sale

    $1,825,000

    1384 E 29th Street, Brooklyn, NY 11210

    • 5 Beds
    • 3 Baths
    • 2,300 Sq.Ft.
  • 203 Battery Avenue Pending

    $1,199,888

    203 Battery Avenue, Brooklyn, NY 11209

    • 3 Beds
    • 2 Baths
    • 1,743 Sq.Ft.
  • 1530 E 51st Street For Sale

    $649,000

    1530 E 51st Street, Brooklyn, NY 11234

    • 2 Beds
    • 2 Baths
    • 1,100 Sq.Ft.
  • 325 Marine Avenue D10 Pending

    $279,000

    325 Marine Avenue D10, Brooklyn, NY 11209

    • 1 Bed
    • 1 Bath
    • 612 Sq.Ft.
  • 7401 4th Avenue F8 Pending

    $325,000

    7401 4th Avenue F8, Brooklyn, NY 11209

    • 1 Bed
    • 1 Bath
    • Sq.Ft.
  • 143 Bay Ridge Parkway 3 Pending

    $750,000

    143 Bay Ridge Parkway 3, Brooklyn, NY 11209

    • 3 Beds
    • 2 Baths
    • 1,141 Sq.Ft.
  • 9511 Shore Road 606 Pending

    $915,000

    9511 Shore Road 606, Brooklyn, NY 11209

    • 2 Beds
    • 2 Baths
    • 1,038 Sq.Ft.
  • 9801 Shore Road 1K Pending

    $700,000

    9801 Shore Road 1K, Brooklyn, NY 11209

    • 2 Beds
    • 2 Baths
    • 1,200 Sq.Ft.
  • 61 Oliver Street 4P Pending

    $275,000

    61 Oliver Street 4P, Brooklyn, NY 11209

    • 1 Bath
    • 475 Sq.Ft.
  • 418 Bay Ridge Parkway Sold

    $1,980,000

    418 Bay Ridge Parkway, Brooklyn, NY 11209

    • 5 Beds
    • 4 Baths
    • 3,060 Sq.Ft.
  • 1961 Wallace Avenue Pending

    $899,000

    1961 Wallace Avenue, Bronx, NY 10462

    • 4 Beds
    • 3 Baths
    • 2,112 Sq.Ft.
  • 9602 4th Avenue 4P Pending

    $349,000

    9602 4th Avenue 4P, Brooklyn, NY 11209

    • 1 Bed
    • 1 Bath
    • 750 Sq.Ft.
  • 945 E 32nd Street Pending

    $798,000

    945 E 32nd Street, Brooklyn, NY 11210

    • 3 Beds
    • 2 Baths
    • 2,091 Sq.Ft.
View All

Follow Us On Instagram